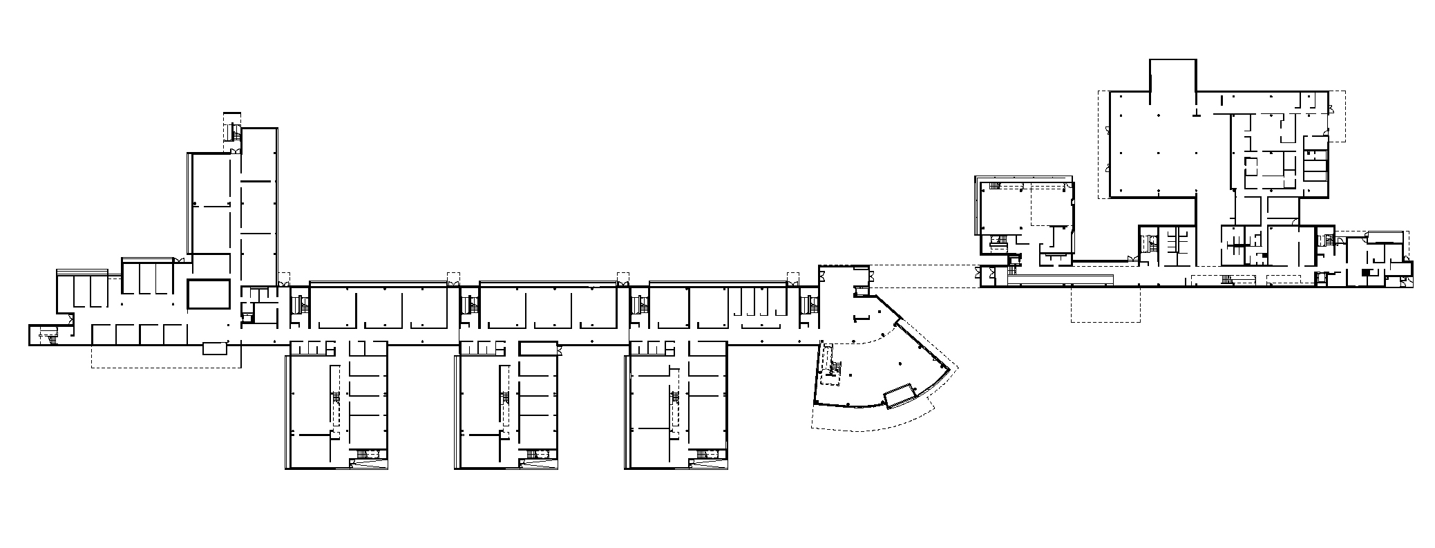
Campus Universitaire - Gennevilliers (92) | Jacques Ripault Architecture
Campus Universitaire
Gennevilliers, Hauts-de-Seine (92)
2009
Salles d’enseignement et de recherche, salles informatique, laboratoires de langues, amphithéâtre 250 places, administration, bibliothèque, restaurant 700 repas, cuisine centrale
Maîtrise d'ouvrage
Département des Hauts-de-Seine
Maîtrise d'ouvrage déléguée
SEM 92
Maîtrise d'œuvre
JRA + INCET bet tce / VIRTZ économiste
Surface
13 000 m²
Coût
23 M.€ HT
Calendrier
livré en 2009















