Centre de Psychiatrie et de Gériatrie au CASH - Nanterre (92) | Jacques Ripault Architecture
Centre de Psychiatrie et de Gériatrie au CASH
Nanterre, Hauts-de-Seine (92)
2004
Restructuration et extension des bâtiments 10 et 11 de l'hôpital Max Fourestier : soins de suite et de psychiatrie au Centre Hospitalier de Nanterre.
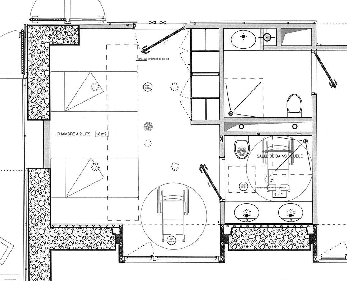
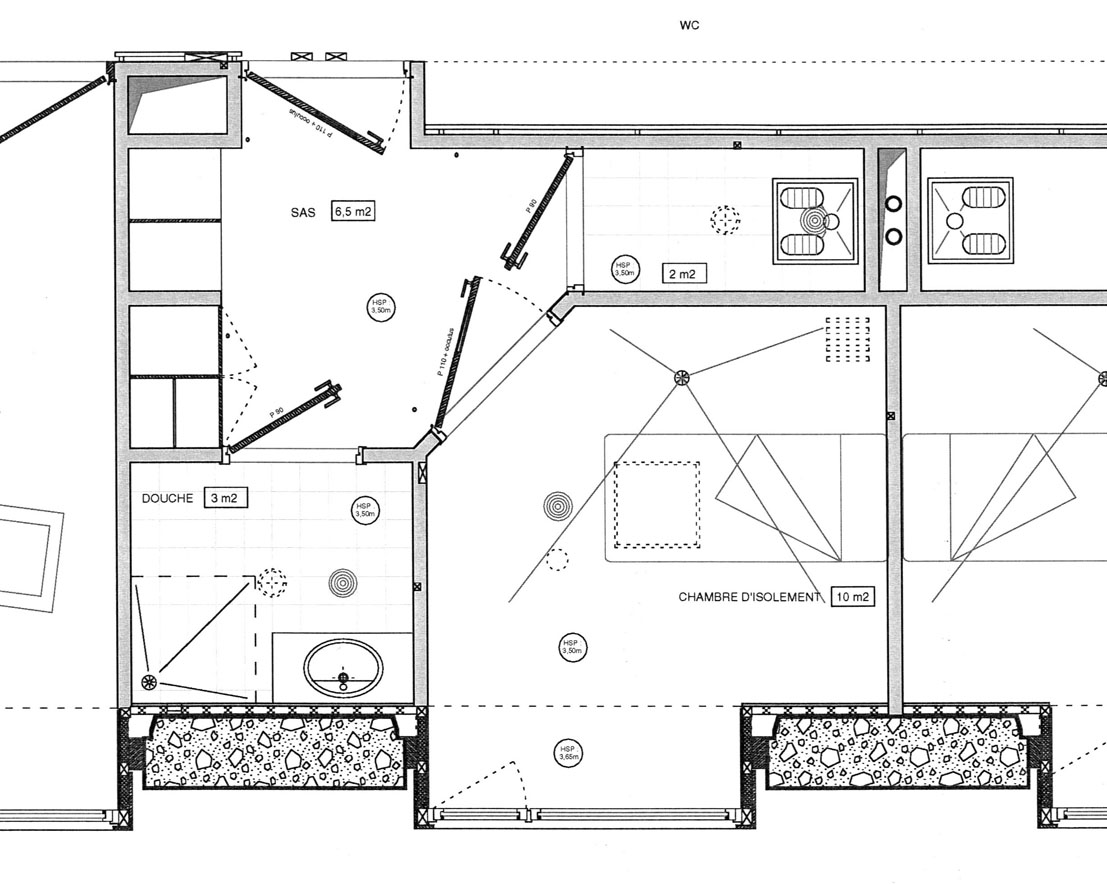
Le projet est une réhabilitation lourde et extension réalisés en 2 phases. Les bâtiments existants (ancienne prison) ont été partiellement évidés et les façades en pierre de meulière ont été ouvertes pour intégrer des bow-windows en bois afin d’agrandir les chambres et donner aux patients des alcôves de lumière et de vue sur les jardins.
Les deux bâtiments sont reliés par un volume cuivre au centre et un bâtiment-pont en béton et en bois le long du chemin de ronde. Ces liaisons délimitent des jardins calmes.
Face au bâtiment de psychiatrie, un enclos en verre réglit constitue une alvéole végétale, qui aide à supporter l’enfermenment.
Les circulations marquent des espacements en fonction de la structure existante de poteaux en fonte ouvragés.
Des salles particulièrement résistantes intègrent tous les équipements, pour éviter aux patients de se blesser.
Les matériaux cuivre, bois et verre s’ajustent à la pierre de meulière, aux toitures en tuiles et contribuent à l’ambiance en camaieu qui se fond dans l’hôpital de Nanterre.
20 lits de rééducation fonctionnelle / 40 lits de soins de suite / 45 lits de psychiatrie secteur ouvert et fermé.
Maîtrise d'ouvrage
Centre d’Accueil et de Soins Hospitaliers de Nanterre
Maîtrise d'œuvre
JRA + BET SETEC
Surface
Neuf : 2 040 m² Réhab : 3 120 m²
Coût
6,1 M.€ HT
Calendrier
livré en 2004


















