Extension et restructuration du bâtiment d’hébergement du CDFAS - Eaubonne (95) | Jacques Ripault Architecture

Extension et restructuration du bâtiment d’hébergement du CDFAS

Eaubonne, Val-d'Oise (95)

2019

CDFAS : Centre Départemental de Formation et d“Animation Sportives du Val d'Oise

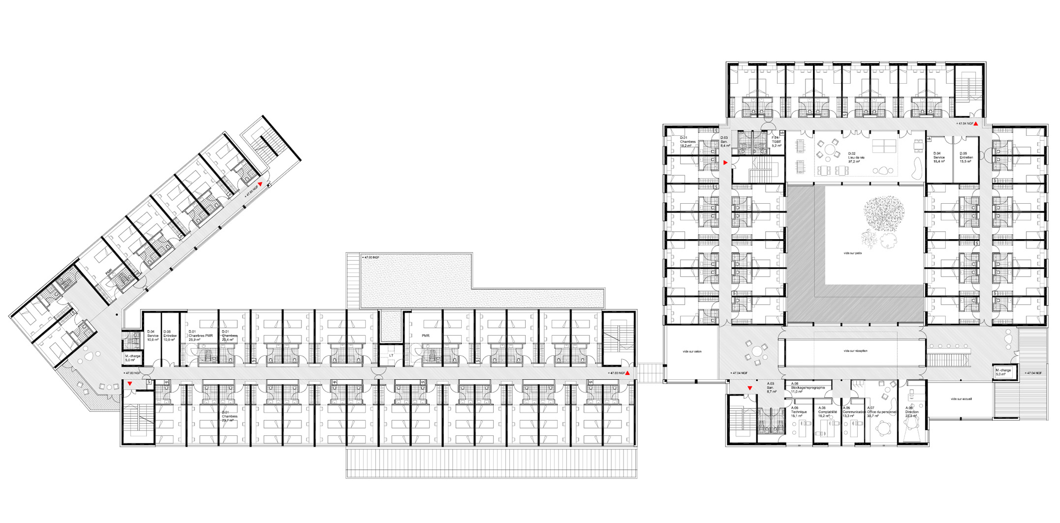
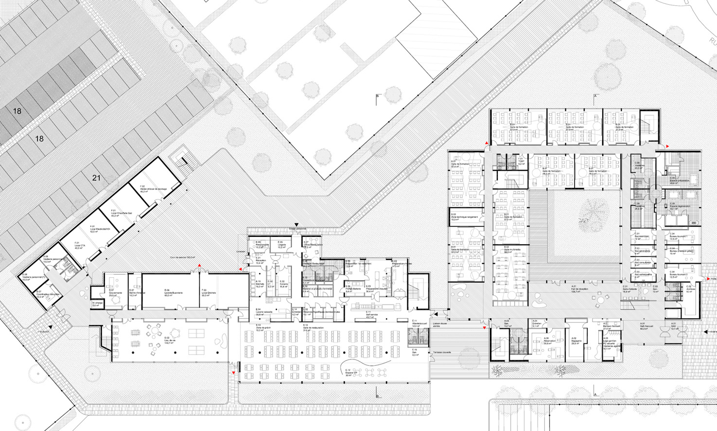
L'opération consiste à restructurer des locaux d'accueil, d'hébergement et de restauration du CDFAS. Cette structure d“accueil répond aux divers besoins du milieu sportif en matière d'entrainement, de formation et d'animation (manifestations, séminaires, conférences) grâce à ses infrastructures sportives de haut niveau, ainsi que par des services intégrés sur le site, tels que l'hébergement, la restauration et les soins de kinésithérapie.

Maîtrise d'ouvrage

Conseil Départemental du Val-d'Oise

Maîtrise d'œuvre

JRA + FACEA bet structure thermique fluides vrd économie acoustique opc / AI ENVIRONNEMENT hqe / BEGC bet cuisine

Surface

SU Neuf : 2 779 m² Réhab 1 963 m² Espaces verts 547 m²

Coût

8,59 M.€ HT

Calendrier

concours