Centre Hospitalier Philippe Pinel - Amiens (80) | Jacques Ripault Architecture
Centre Hospitalier Philippe Pinel
Amiens, Somme (80)
1997
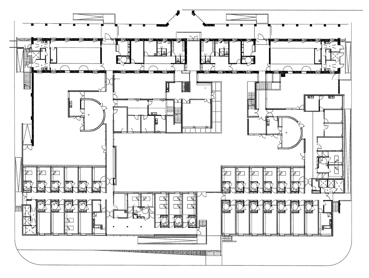
Restructuration de l’Hôpital Philippe Pinel à Amiens
260 lits court, moyens et longs séjours, rééducation
Maîtrise d'œuvre
JRA
Surface
11 000 m²
Coût
9,45 M.€ HT
Calendrier
projet non construit









