Bloc opératoire et Urgences de Hôpital Ambroise Paré - Boulogne-Billancourt (92) | Jacques Ripault Architecture
Bloc opératoire et Urgences de Hôpital Ambroise Paré
Boulogne-Billancourt, Hauts-de-Seine (92)
2006
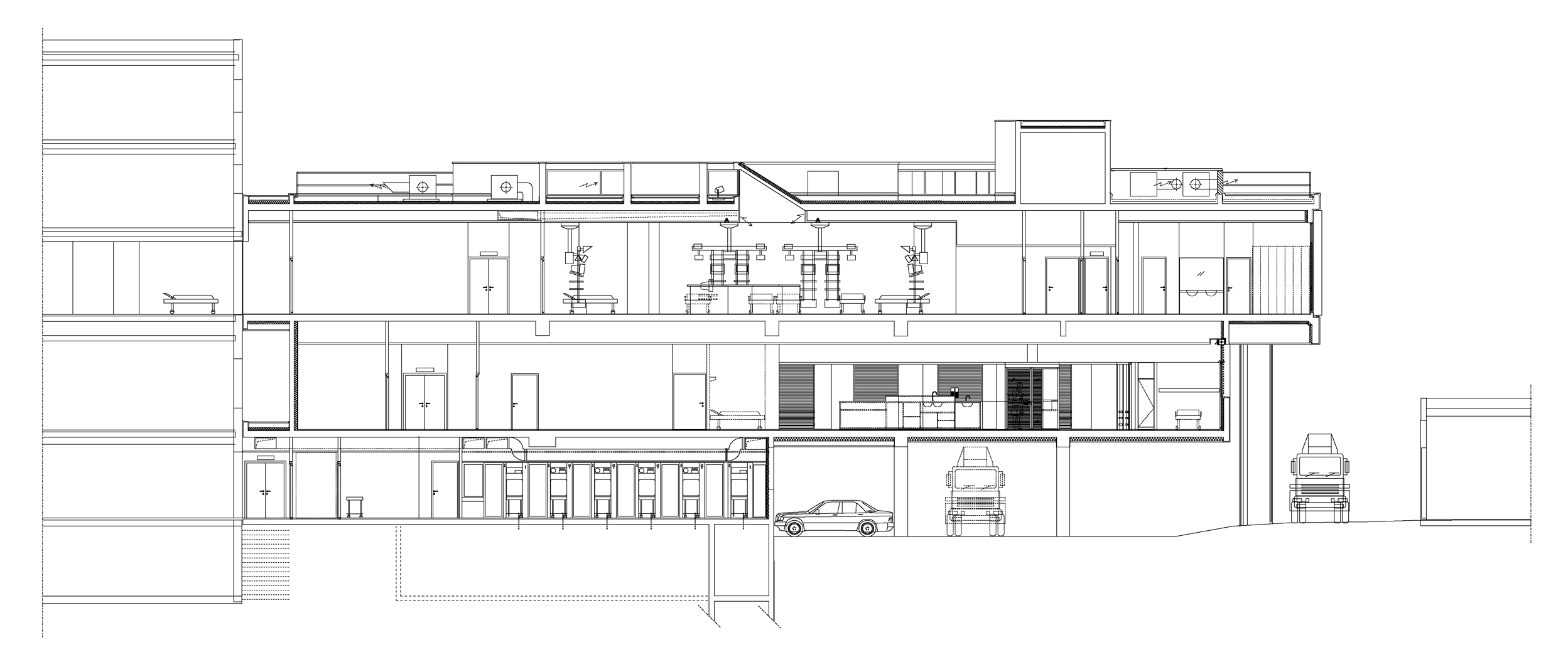
Bloc opératoire et service porte à l’Hôpital A. Paré à Boulogne
Service porte – 1 bloc opératoire —création d'une nouvelle stérilisation
Maîtrise d'ouvrage
Assistance Publique Hôpitaux de Paris
Maîtrise d'œuvre
JRA + SFICA bet / cabinet TOHIER économiste
Surface
2 800 m²
Coût
4,42 M.€ HT
Calendrier
livré en 2006












