Laboratoires de Mécanique et d’Acoustique - Marseille (13) | Jacques Ripault Architecture

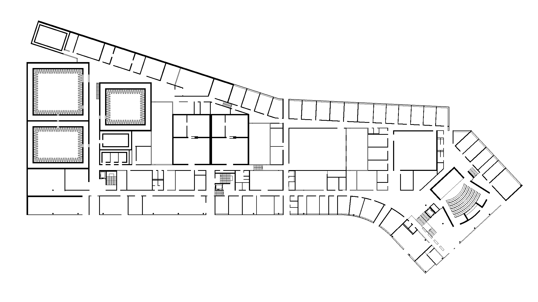
Laboratoires de Mécanique et d’Acoustique

Marseille, Bouches-du-Rhône (13)

2011

Image projet JRA

Programme : Laboratoires de mécanique + acoustique

Image projet JRA

Maîtrise d'ouvrage

CNRS - Délégation Provence et Corse

Maîtrise d'œuvre

JRA

Surface

8 030 m²

Calendrier

concours

Image projet JRA
Image projet JRA