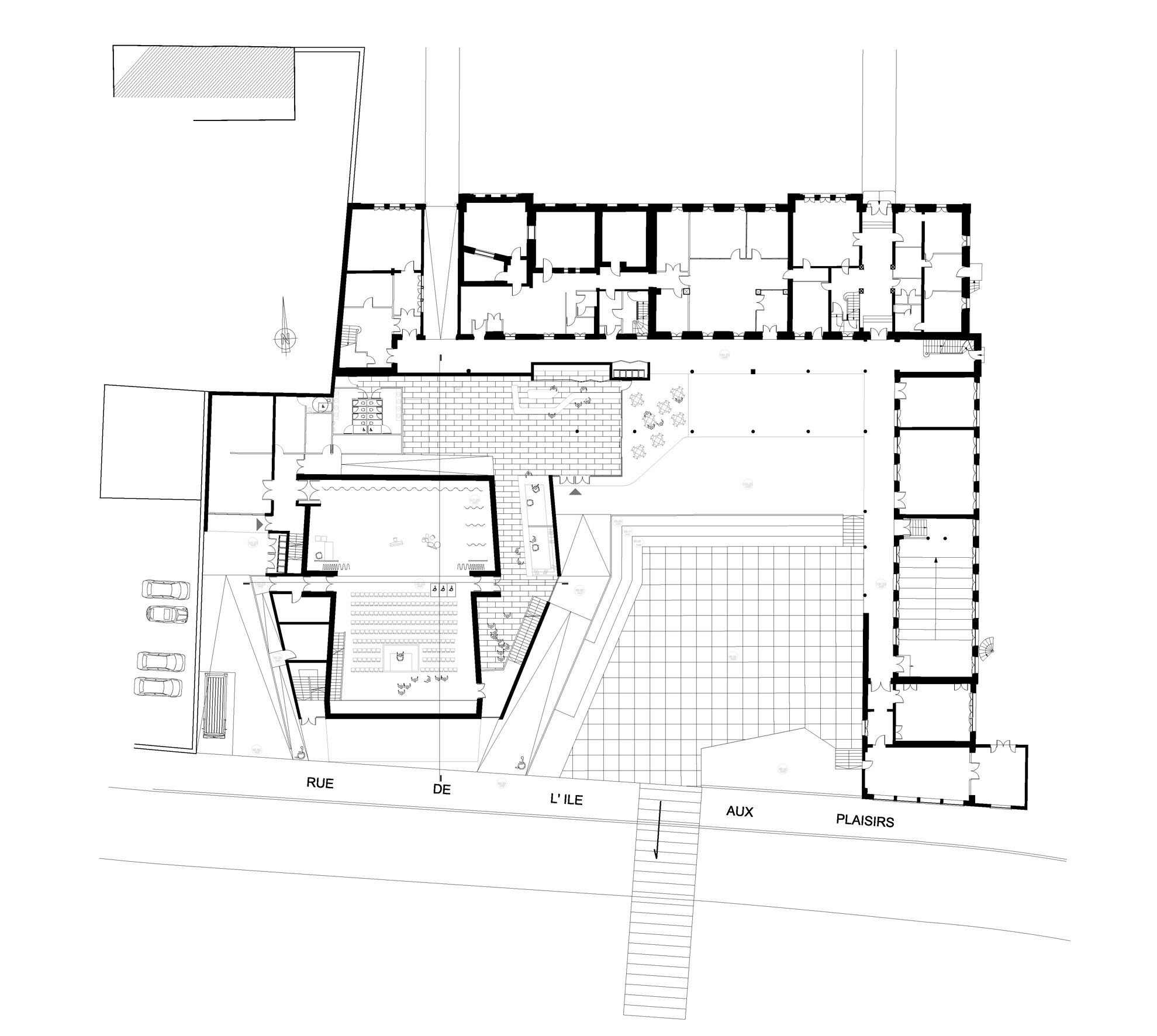
Salle de Musiques Actuelles, école de musique - Auxerre (89) | Jacques Ripault Architecture
Salle de Musiques Actuelles, école de musique
Auxerre, Yonne (89)
2003
Maîtrise d'ouvrage
Ville d’Auxerre
Maîtrise d'œuvre
JRA
Calendrier
concours
Auxerre, Yonne (89)
2003
Maîtrise d'ouvrage
Ville d’Auxerre
Maîtrise d'œuvre
JRA
Calendrier
concours